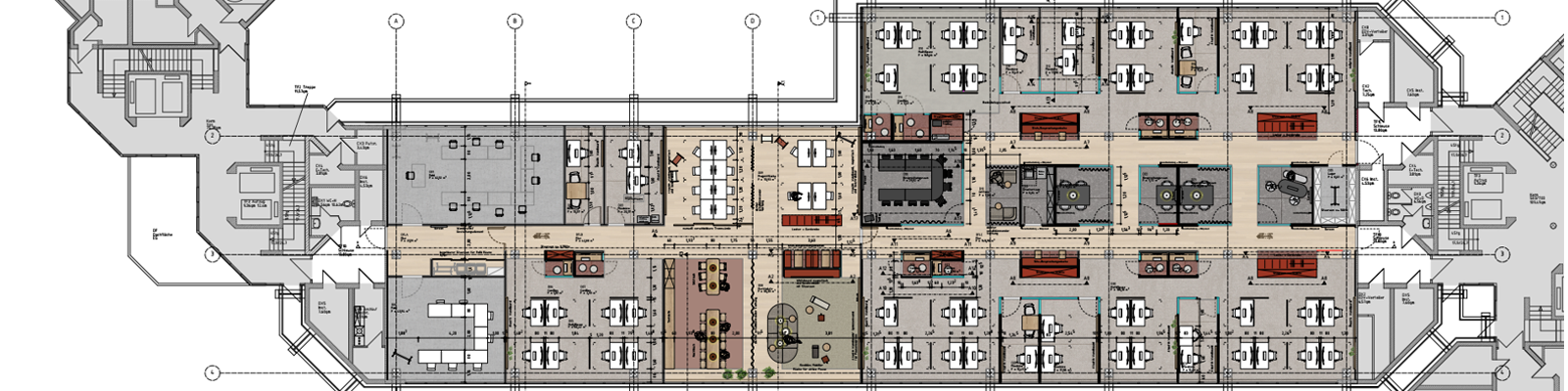
Pilot project T03 R03 – New Work in the civil service

Project objective

  • Comprehensive refurbishment and modernisation of floor T03 R03 to create a “New Work” pilot area for the administration

Uses affected by the project

  • University central administration (Building Management Department, DTAC, PE, OE)

Scope

  • 1.413 m² total floor area T03 R03
  • 877 m² usable floor area 2/offices

Expected completion date

  • 3rd Quarter of 2026